Venta tres ambientes en construccion- Villa Devoto

Dirección: Lavallol al 4500

Venta

U$S169.000

Detalles de la Propiedad

Tipo de Propiedad
Departamento
Ubicación
Lavallol al 4500
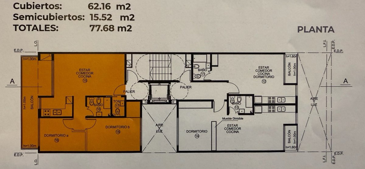
Superficie Cubierta
62m2
Ambientes
3
Total Construido
77m2
Baño
1

INFORMACIÓN BÁSICA

Ambientes: 3
Dormitorios: 2
Baños: 1
Condición: ---

SUPERFICIES Y MEDIDAS

Cubierta: 62m2
Superficie Total: 77m2

DESCRIPCIÓN

ESPECTACULAR VENTA DE 3 AMBIENTES EN VILLA DEVOTO, ENTREGA ESTIMADA ABRIL 2027.
COCHERA CUBIERTA OPCIONAL: 28.000USD
FORMA DE PAGO: 60% AL BOLETO + 12 CUOTAS MENSUALES FIJAS EN DÓLARES HASTA LA POSESIÓN


Espectacular departamento de 3 ambientes en Villa Devoto. Entrega estimada 4 trimestre 2026.
Las unidades se entregan con pre instalación de A/A, punto de conexión de lavarropas en cocina y parrilla en balcón.
SE PUEDE VISITAR OBRA




La información descrita en el siguiente aviso es meramente orientativa y no forma parte de ningún tipo de información contractual. Los datos enunciados fueron proporcionados por los propietarios y pueden arrojar inexactitudes. Las superficies definitivas surgirán del título de propiedad del inmueble referido. Se deja constancia de que los valores y/o expensas pueden estar sujetas a verificación o ajustes.


Corredor responsable IGNACIO CURAT


CUCICBA 9299








SERVICIOS Y CARACTERISTICAS

Agua Corriente
Cloaca
Electricidad
Pavimento
Cocina
Internet
Cable
Toilette
Balcón
Apto profesional
Teléfono
Seguridad
En construcción

Detalles de la Propiedad

Tipo de Propiedad
Departamento
Ubicación
Lavallol al 4500
Superficie Cubierta
62m2
Ambientes
3
Total Construido
77m2
Baño
1

Consúltenos

Estaremos encantados de asesorarlo y brindarle más información.